















































Welcome to Southbrook, where you’ll discover a complete range of living and care options, spacious floor plans, engaging activities, excellent amenities and devoted team members, all in a thriving environment brimming with Hometown Hospitality®.
As an Americare community, Southbrook is privately owned and locally operated. Everything we do – every decision, every day – is about flourishing in mind, body and soul. Living your best life … at every stage of life. It’s something you’ll feel the moment you walk through our doors. We hope to see you soon.

After an injury, surgery or health-related event, the experienced team at Southbrook develops a personalized nursing care plan tailored to each resident’s needs. Whether for short-term recovery or ongoing support, our rehabilitation and skilled nursing services focus on restoring strength and mobility in a warm, home-like setting that keeps loved ones connected and reassured.

When you need support for acute or chronic medical conditions – post-surgery, accident or illness – you can count on Americare Therapy Solutions at Southbrook. Our Rehab-to-Home program combines physical, occupational and speech therapy along with skilled nursing services to create a plan to return you successfully to the place you call home. For our long-term residents, our ongoing therapy services assure you will receive the therapeutic assistance you need to thrive.

Following a stay in our Southbrook rehab-to-home program, Americare Home Health Solutions can bring expert care to you in your home. Your care team at Southbrook coordinates with Americare Home Health Solutions for a seamless transition and creates a discharge plan to help you avoid hospitalizations and ER visits – giving you greater quality of life wherever you call home.

At Southbrook, we believe in supporting residents and their families through every stage of life, including the final journey. By coordinating Hospice Care with trusted local providers, we ensure comfort, dignity and peace in familiar surroundings – allowing families to focus on meaningful moments together.


The benefits of a nutritious, expertly prepared meal cannot be overstated. Fresh ingredients and delicious recipes strengthen body and spirit at Southbrook. You’ll dine among friends in our gracious, restaurant-style dining room, where you’ll relish our made-to-order breakfast, daily lunch and dinner specials, and an always available menu. Don’t hesitate to ask for seconds! We aim to please.

At Southbrook, you’ll find friends, fun and endless opportunities to explore new interests. Whether it’s learning a skill, listening to live music or enjoying our scenic grounds, every day is yours to enjoy. Our unique Hometown Hospitality goes beyond friendly chats and warm handshakes. It fosters connection, well-being and enrichment. From social gatherings to intergenerational programs, you’ll always feel at home in a vibrant, welcoming community.

At Southbrook, wellness goes far beyond fitness. Our Flourish Wellness™ nurtures the whole person – mind, body and soul – embracing all seven dimensions of wellness through enrichment activities like pet therapy, exercise classes and faith-based programs that bring meaning and joy to life. Feed your sense of purpose participating in community fundraisers and civic projects, as these volunteer opportunities are brought into our community. Expand your mind with educational programs and find peace through meditation. Whether playing a spirited game of cribbage or simply sharing a conversation with friends, opportunities for connection and fulfillment are always within reach.
The benefits of community living are undeniable. In a recent U.S. News survey, 61% of older adults said feelings of loneliness or isolation improved after moving into a senior living community, while 65% found it easy to meet other older adults, and 85% made new friends. At Southbrook, our residents enjoy countless opportunities to stay active, connected and fulfilled in a welcoming, supportive environment, where wellness is a way of life.

Living your best life goes far beyond a comfortable, private living space and delicious meals. At Southbrook, our residents enjoy numerous amenities that enhance quality of life, including our spacious community dining rooms, private dining, bar area, family rooms with big-screen TV, cozy kitchens and social areas, community room, fully equipped fitness center, beauty salon, manicured grounds and patios with scenic views of nature. For convenience and security, you’ll appreciate our Americare Pharmacy Solutions, Parkland Health Center just down the road, and scheduled transportation. Of course, Southbrook is also pet friendly, providing you can care for your furry friend.
No level of care add-ons.
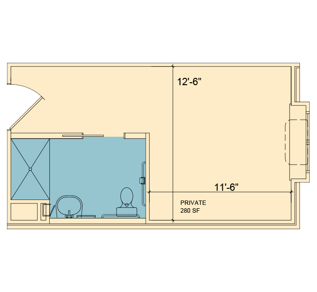
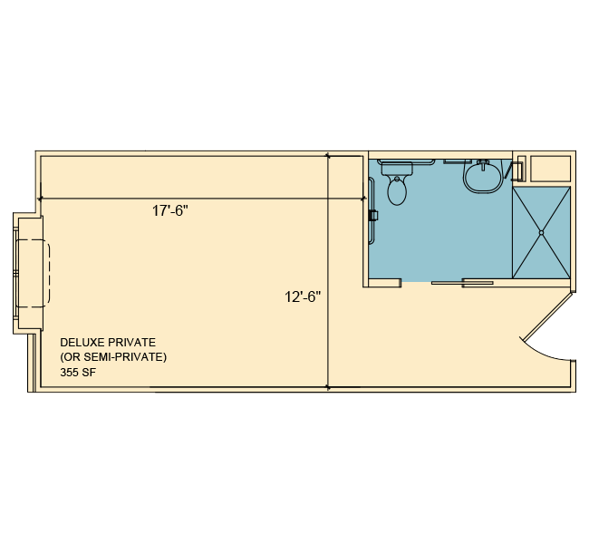
Southbrook Living & Care Options
Cookie Policy: We use cookies to enhance your browsing experience. By continuing to use this site, you agree to our use of cookies. To learn more about how we use cookies and your options, please see our Privacy Policy.
Social
Special thanks to First State Community Bank for donating the 4 Cardinal Baseball tickets!The cardinals baskets that we raffled off to raise money for our community events that our residents and employees get to enjoy was a huge success! So thank you 😊 ... See MoreSee Less
0 CommentsComment on Facebook
It is a great day for a front porch social. Cool breeze, a little sunshine and great conversations. ... See MoreSee Less
6 CommentsComment on Facebook
🐣Happy Easter to all!🐣Our 2nd Annual Community Easter Egg Hunt was a huge success! Thank you to all that attended! A huge thank you to all that donated eggs and candy! Shout out to Americare Home Health Solutions for donating prizes, Froggy 96 for attending the egg hunt, First State Community Bank for the donation and Le Locos Tacos & Birria for hosting a food truck! ... See MoreSee Less
0 CommentsComment on Facebook